Navigation überspringen

NEUBAU
Grundschule Neu Wulmstorf

NEUBAU Grundschule Neu Wulmstorf

Aller guten Dinge sind drei. Zumindest, wenn es um die Anzahl der Grundschulen in Neu Wulmstorf geht. Durch das rasante Bevölkerungswachstum des Stadtteils wurde die bisherige »Grundschule am Moor« aus den 1960er Jahren inzwischen zu klein und durch einen Neubau auf einem gegenüberliegenden Grundstück ersetzt. Und der Bau schritt nicht zuletzt aufgrund der gewählten Systembauweise in großen Schritten voran: Die etwa 7,5 Meter langen Wandelemente wurden mit fertig montierten Fenstern und Sonnenschutz-Jalousien angeliefert und mit einem großen Kran auf der Baustelle montiert. So konnte die Bauzeit des Rohbaus deutlich verkürzt werden.

Projekt
Multifunktionales Gebäude mit Grundschule, Sporthalle und Veranstaltungszentrum
Bauherr:in
Gemeinde Neu Wulmstorf
ÖPP-Partner:in
Goldbeck Nord
Leistung
1-5 HOAI
Fläche
8.150 m² BGF
Lage
Ernst-Moritz-Arndt-Straße in Neu Wulmstorf
Fotografie
Dorfmüller Klier
Besonderheiten
1. Platz ÖPP Verfahren

Die Grundschule am Moor besteht aus fünf Minischulen auf drei Geschossen, die sich innen und außen sowohl gestalterisch als auch farblich voneinander unterscheiden.

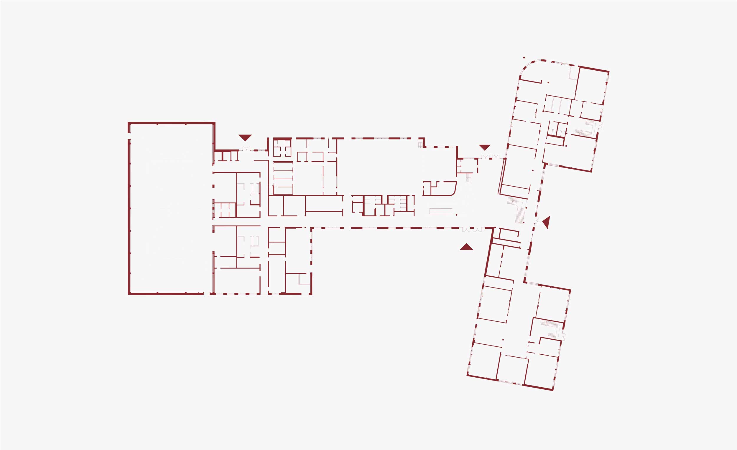
Der Baukörper ist von außen ablesbar in drei zusammenhängende Bereiche gegliedert: Klassischer Schulbetrieb, Veranstaltungsbereich als verbindende Spange und Sporthalle unterscheiden sich vor allem in ihrer Geschossigkeit. Durch die Vor- und Rücksprünge bilden sich vor dem Haupteingang ein öffentlicher Quartiersplatz und Willkommenshof für die Schule. Rückwärtig entstehen zwei Höfe, die als erweiterte Unterrichtsfläche und als Pausenhof von Lehrenden und Schüler:innen genutzt werden können. Ein hellbeiger Fassadenklinker gepaart mit gelben und grünen Fassadenelementen hüllt die Schule in ihr Gewand. Beidseitig nähern sich die farbigen Elemente der gelben Sporthalle und des grünen Schulbaukörpers im gemeinsamen Veranstaltungs- und Eingangsbereich an und verzahnen sich dort miteinander.

Grundschule Neu Wulmstorf
Lageplan
Erdgeschoss
Obergeschoss
Schnitt
Schnitt
Ansicht Nord
Ansicht West

Bis zu 450 Besucher:innen finden im Eingangsbereich der Schule Platz, der neben der Ankunft auch als gemeinschaftlich genutzter Veranstaltungsbereich genutzt wird. Hier wird gegessen, gerauft und auch mal gestaunt, wenn externe Vereine, Initiativen und Kulturschaffende die Aula als Bühne mit Leben füllen. Durch eine mobile Trennwand können temporär - je nach Nutzung - auch unterschiedliche Raumgrößen realisiert werden. Das zentrale Treppenelement ermöglicht durch Sitzstufen, Treppenstufen und die Rampe eine barrierefreie und inklusive Kommunikation auf allen Ebenen. Die Sitzstufenlandschaft schwingt sich farbenfroh über die Geschosse nach oben und verbindet alle Leitmotive der Schule in einem Element: Rundungen, Farbe und springende Frösche.

Durch die topographische Situation des Baugrundstücks war schon zu Beginn der Planung klar, dass jede Minischule ein grünes Klassenzimmer haben wird. Zwischen Gebäudekubatur und Hang sind ruhige, intime Außenbereiche entstanden, in denen ergänzend zum konventionellen Klassenraum Unterricht stattfinden kann. Innen- und Außenraum werden so miteinander verzahnt. Und apropos Verzahnung: Durch die großen Fensterelemente zum dreiseitig gefassten, kleinen Innenhof werden die vermeintlichen Grenzen zwischen den Minischulen fließend aufgelöst und ermöglichen kommunikative Blickbeziehungen auch über die Geschosse und die Minischulen hinweg.

Das pädagogische Konzept der Minischulen sieht vor, dass jeweils eine Klasse 1 bis 4 zu kleinen, eigenen Einheiten zusammengefasst werden. Kleine Schüler:innen können so von den größeren lernen und Patenschaften übernommen werden. Räumlich bedeutet das, dass es nicht nur die üblichen Klassenräume gibt, sondern auch kommunikative Gemeinschaftsflächen für die einzelnen Mini-Schul-Einheiten. Jede Einheit hat ein eigenes Treppenhaus mit direkter Verbindung zum kleinen Pausenhof, dem Schulgarten und den Außenklassenzimmern.

Stimmen aus dem Team

Einer meiner Lieblingsorte der Schule ist der kolonnadenartige, lichtdurchflutete Gang zwischen Mensa und Sporthalle entlang des Foyers, der die Innenräume fließend mit dem Außenraum verbindet.

Sarah

Ich freue mich besonders, dass die Schule auch von Vereinen, Initiativen und Kulturschaffenden genutzt wird. Damit trägt das Gebäude auch zur sozial-integrativen Infrastruktur vor Ort bei.

Romy

Was mir an diesem Gebäude sehr gefällt, sind die groß angelegten Fensterflächen und die sich daraus ergebenden Sichtbeziehungen: Die Schüler:innen nehmen ihre Umgebung bewusster wahr, was ihnen ein Gefühl von Offenheit und Freiheit vermittelt. Wir sind überzeugt, dass dies Stress abbaut und Kreativität und Konzentration fördert. Und auch die Interaktion zwischen den Schüler:innen wird gefördert.

Elsa

Diese Schule ist mein erstes, realisiertes Projekt, das ich von Anfang an mit betreut habe. Auf das Gefühl, das erste Mal durch ein Gebäude zu laufen und zu spüren, wie die eigene Planung aufgeht, habe ich so lange gewartet. Und das Warten hat sich gelohnt.

Carina